2. Rang Mehrzweckhalle Stutensee

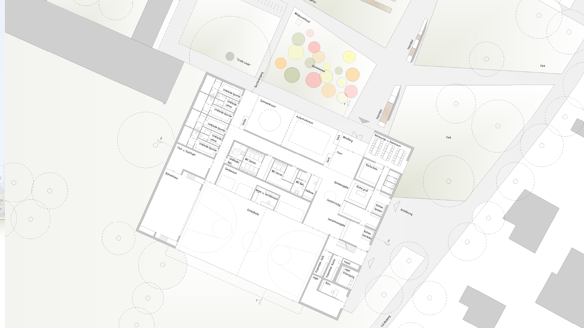
Der Neubau der Mehrzweckhalle nimmt mit seiner parallelen Ausrichtung Bezug zur Drais-Grundschule auf. Zusammen mit dem Kindergarten bilden die drei Gebäude ein nach Süden abgestuftes Ensemble, welches die Raumkanten für Schulhof, Kinderspielplatz und Themengärten bildet. Die parallel ausgerichteten Gebäuderiegel jeweils mit ihren Hauptnutzungseinheiten sind zum Grünraum ausgerichtet.

Ein offener Laubengang verbindet Halle und Schule. Die Fortführung des Laubengangs nach Osten bietet für weitere Fahrradstellplätze eine Überdachung.

Der Haupteingang der Mehrzweckhalle ist von der Draisstraße erschlossen. Die Aufweitung des neuen Weges vor dem Eingang bietet Aufenthaltsmöglichkeit.

Ein Astartiges Wegesystem gliedert den vorgelagerten Grünbereich in vier Flächen. Die beiden der Schule zugewandten Bereiche können optional von der Schule als „Themengärten“ für Unterrichtszwecke genutzt werden. Die nach Osten angrenzenden Flächen bilden Parkähnlich den Auftakt für den Naherholungsweg am Wehrgraben.

Ein der Schule zugeordneter Sportlereingang dient ausschließlich der Schulsport- und Vereinsnutzung.

Die Anlieferung und Feuerwehrzufahrt des Gebäudes erfolgt von Osten über einen befestigten Fuß-/Fahrweg entlang des Wehrgrabens

Das Bauvolumen gliedert sich in den Erschließungs- und Nebenraumteil, aus welchem sich ein transluzenter Aufsatz im Bereich des Gymnastik-/Aufenthaltsraumes herausschiebt, und in den Hallenteil mit Bühne und Technikbereich im Obergeschoss.

Ein Windfang ist dem Essenraum für die Schule und dem Foyer vorgelagert.

Das Foyer dient als Verteiler und Aufenthaltsbereich in Veranstaltungspausen und bietet einen angemessenen Vorbereich vor den Ausgaben der Küche. Oberlichter sorgen für natürliche Ausleuchtung in der Raumtiefe.

Die Einfeldhalle ist von zwei Seiten über die komplette Längsseite natürlich belichtet und belüftet. Nach Süden übernimmt ein ausladendes Kragdach Sonnenschutzfunktion.

Im Kern sind WC- Anlagen organisiert. Die Geräteräume mit Regieraum sind von den Hallenteilen erschlossen.

Die Umkleideräume sind unmittelbar dem Sportlereingang zugeordnet.

Der abgestufte Baukörper erhält eine vorgesetzte Verkleidung aus vertikalen vorvergrauten Lärchenholzleisten, welche durch Oberflächenbehandlung und Fugenbild eine gebänderte Struktur erzeugen.

Über die Zweischaligkeit lassen sich sowohl die energetischen Ziele erreichen als auch Nachhaltigkeit im Sinne von reduzierten Unterhaltskosten und würdiger Alterung der Fassade. Zur Reduzierung der Flächenversieglung ist das tiefer liegend Flachdach extensiv begrünt.

Der Aufsatz ist umlaufend mit zweischaliger Profilitverglasung mit integrierter transluzenter Wärmedämmung verkleidet. Diese Fassadenkonstruktion sorgt für natürliche Ausleuchtung von Gymnastik-/ Aufenthaltsraum und Eingangsbereichen, trägt der Energieeinsparung Rechnung und integriert aufgrund des sehr guten g-Wertes Sonnenschutzfunktion.