Hotel Stadtgarten Heilbronn

Stadtgarten

Die Neuordnung des Stadtgartens fügt sich wie selbstverständlich an das bereits umgestaltete Vorfeld des Kongresszentrums an. Jeweils an den Gelenkpunkten zwischen Park und Schulzentrum, bzw. Harmonie bilden platzartige Aufweitungen großzügige Entrées zum Stadtgarten. Die Freiflächen sind durch lineare Wegeführungen gegliedert, so entstehen Felder mit unterschiedlichen Nutzungsmöglichkeiten und Funktionen.

Von der Harmonie kommend schließt an den markanten Bestandbaum (Flügelnuss) eine hochwertig gestaltete Fläche mit Wasserelementen und Sitzblöcken an. Die Fontänen schaffen für den Freibereich der Außengastronomie (Terrasse Hotel und Brauhaus) einen angenehmen Geräuschfilter und sind gleichzeitig anziehendes Spielelement für Kinder.

Die neuen Zu- und Abfahrten der Tiefgaragen werden untergeordnet in die Parkflächen integriert. Die Zufahrtsspindel der vorhandenen Tiefgarage wird zurückgebaut. Die bestehende Ausfahrtsspindel zur Gymnasiumstraße wird erhalten. Der Busbahnhof bleibt an seinem bisherigen Standtort und wird durch seine Neuordnung optimiert. Eine Überdachung für Fahrtgäste ist vorgesehen.

Die Freiflächen des Parks sind offen gestaltet um eine flexible Nutzung zu ermöglichen. Die zentrale Fläche ist als Spiel- und Liegewiese angelegt. Daran angegliedert sind Spielangebote für unterschiedliche Altersgruppen. Die Spielflächen für größere Kinder und Jugendliche werden dem Schulzentrum zugeordnet.

In diesem Bereich schafft eine mit Plattenstreifen gebänderte Rasenfläche das gegenüberliegende Entrée zum Stadtgarten und bildet die hochwertige Anbindung des Schulzentrums an den neu gestalteten Stadtgarten und ist Gelenk für die Erschließung der ÖPNV-Haltestellen (Busbahnhof / Allee, bzw. Moltkestraße)

Der erhaltenswerte Baumbestand wird weitestgehend in die Planung integriert und durch markante Neupflanzungen ergänzt.

Hotel

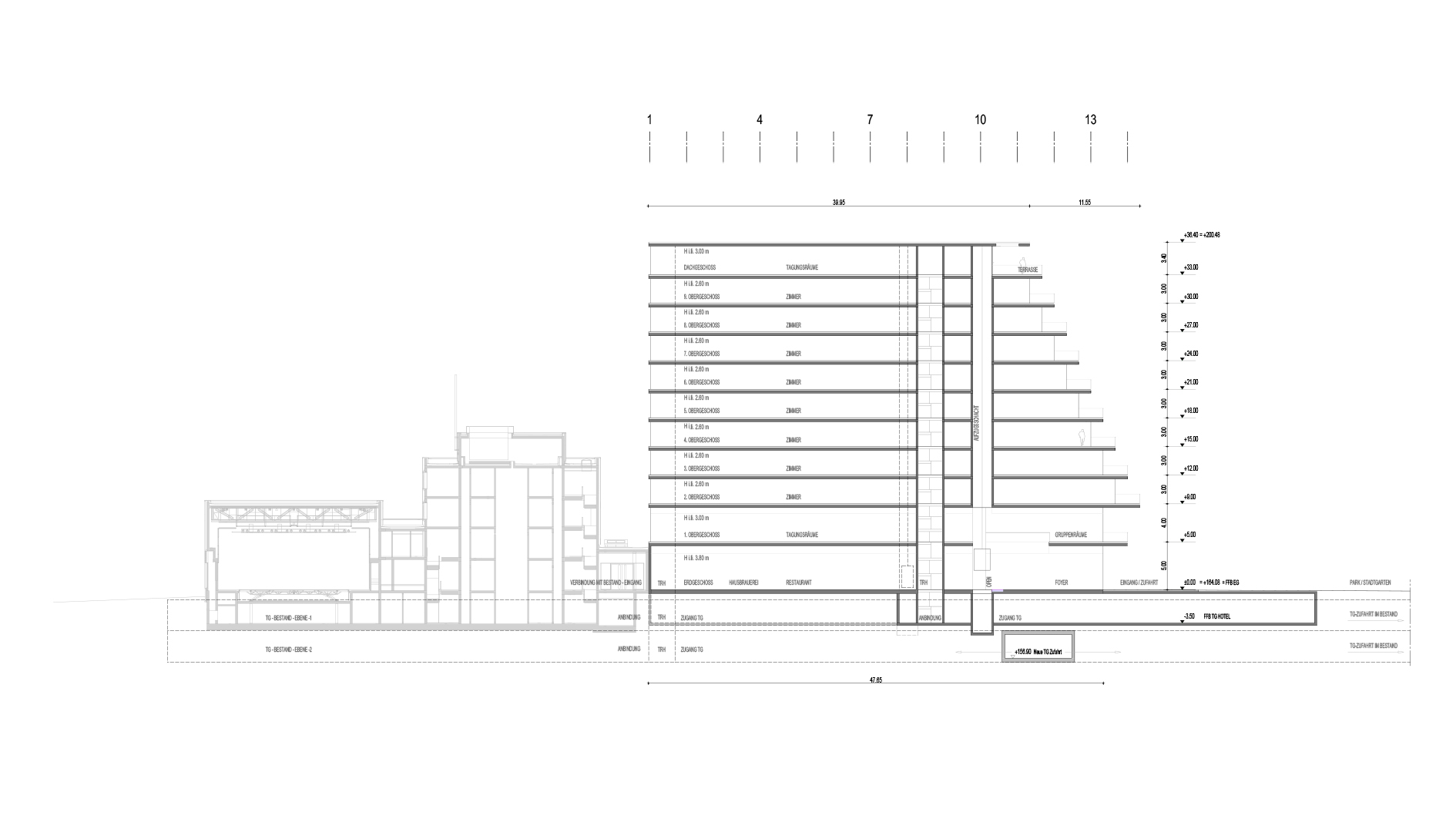
Die liegenden Volumen des bestehenden Ensembles werden durch einen vertikalen Baukörper ergänzt, welcher dem Hotel durch seine horizontale Schichtung neben Leichtigkeit und Transparenz eine eigene Identität verleiht. Durch die Entwicklung in die Höhe ist es möglich den Park auf der Ostseite als großzügige zusammenhängende Grün- und Erholungsfläche zu erhalten.

Während die Fassaden nach Süden, Westen und Norden mit ihrer Bänderung den Baukörper räumlich zur Stadt begrenzen, gibt die zum Park hin orientierte Seite als begrünte Schräge dem Gebäude sein markantes Signet. Das Grün des Parks steigt in Form der begrünten Terrassen die Bänder empor und schafft somit eine unmittelbare Verbindung zum Stadtgarten.

Der Hoteleingang mit Orientierung zum Park öffnet über seinem zweigeschoßigen Luftraum den Blick in die Konferenzebene. Bar, Restaurantflächen und Hausbrauerei sind den zugehörigen Terrassen auf der Südseite des Gebäudes zugeordnet. Die bestehende Küche wird erhalten und durch eine zweite zwischen den Gastronomieflächen positionierte einsichtbare Front Cooking Fläche ergänzt.

Die Tagungsräume der Konferenzebene gruppieren sich um ein begrüntes Atrium, welches räumlich mit einer Lounge verbunden ist und zum Aufenthalt während der Sitzungspausen dient.

Die Standardzimmer sind im wesentlichen beidseits des in West-Ost-Richtung verlaufenden Flures angeordnet, während die hochwertigen Zimmer auf der Parkseite mit begrünter Terrasse den Blick in die Weinberge freigeben.